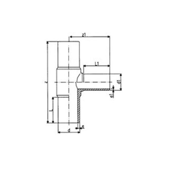
+GF+, Tés à 90° réduits PE100 SDR11

• 5 bar gaz / 16 bar eau
• Version longue
Fabricant GF
Trouvé 78
N° d'article
N° d'article
Fabricant
d
mm
d1
mm
L
mm
L1
mm
e
mm
e1
mm
z
mm
z1
mm
78 de 78
d
d1
L
L1
e
e1
z
z1