+GF+, Collets à souder PE100 SDR11 Surface d'étanchéité combinée: lisse et striée

Exécution:
• Embout mâle long
• Matériel: PE100
• Pour des soudages bout à bout, IR Plus et électrosoudages
• Compatible pour des raccordements à brides ISO/DIN (à partir de d110 aussi ANSI B 16.5)
• Joints d20 - d630: joint profilés NBR n° 45 44 07, EPDM n° 48 44 07 ou FPM n° 49 44 07
• Joint d710 - d1000: joint plat EPDM n° 48 40 03
• Type A sans chanfrein, Type B avec chanfrein
• 5 bar gaz / 16 bar eau
• Jusqu'à d315, convient aux vannes papillon type 567/568. Utiliser l'adaptateur ecoFIT pour
   vannes papillon SDR11 (d355-d1200)
Fabricant GF
Trouvé 20
N° d'article
N° d'article
Fabricant
DN
mm
type
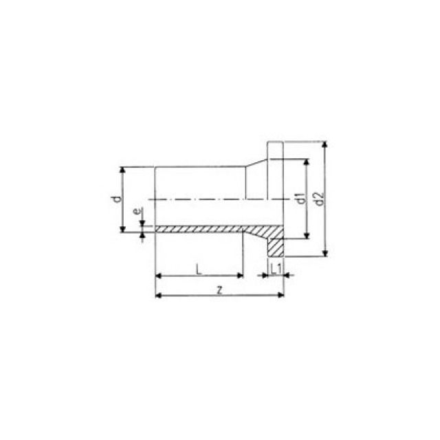
d
mm
d1
mm
d2
mm
L
mm
L1
mm
L2
mm
d4
mm
e
mm
20 de 20
DN
type
d
d1
d2
L
L1
L2
d4
e
d3